Haus zur Renovierung, erste Reihe zum Meer










Beschreibung
Haus zur Renovierung, erste Reihe zum Meer
-
Korcula
Immobilien-ID:5278/30
Interessantes Anwesen auf der Insel Korčula in der ersten Reihe zum Meer. Es handelt sich um eine Immobilie zum Wiederaufbau, die sich auf einem Grundstück von 645 m2 befindet. Die aktuelle Größe des Gebäudes beträgt 182 m2 und es wurde 1920 erbaut.
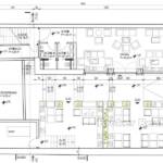
Das Gebäude verfügt über zwei Eingänge, einer befindet sich auf der Ostseite von der Hauptstraße und der andere auf der Westseite von einer Seitenstraße. Das Grundstück verfügt über eine vollständige Projektdokumentation und eine Baugenehmigung für das Haupt- und Nebengebäude. Dem Projekt zufolge ist der Bau eines kleineren Hotels mit Restaurant geplant. Das Hotel besteht aus einem Erdgeschoss, zwei Etagen und einer Galerie. Vor dem Haus befindet sich ein Restaurant.
Das Erdgeschoss besteht aus zwei separaten Teilen, die durch einen gemeinsamen Eingang verbunden sind. Im ersten Teil gibt es eine Kaffeebar mit Terrasse und zwei dazugehörige Toiletten. Im zweiten Teil gibt es ein Restaurant mit Esszimmer, zwei Toiletten, einer Küche, zwei Abstellräumen, einem Raum mit Maschinenraum und einem Wellnessbereich mit Sauna, Whirlpool, Hydromassagewanne und zwei Badezimmern.
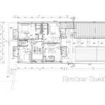
Die erste Etage besteht aus drei Schlafzimmern, jedes mit eigenem Bad und Ausgang zum Balkon. Auf der gleichen Etage befindet sich auch eine Rezeption mit zwei Toiletten, die Zugang zu einer großzügigen Terrasse mit Liegewiese und Swimmingpool bietet.
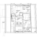
Die zweite Etage besteht aus vier Schlafzimmern, jedes mit eigenem Bad und Ausgang zum Balkon.
Über eine Innentreppe gelangt man in die letzte Etage, die Galerie, die aus zwei Schlafzimmern mit eigenem Bad, zwei Toiletten, einer Waschküche und einem Gemeinschaftsraum zum Entspannen besteht.
Das Gebäude ist nach Südosten ausgerichtet und verfügt über zwei Parkplätze vor dem Hof. Es besteht auch die Möglichkeit, das Gebäude in ein Wohnhaus mit einer, zwei oder drei Wohneinheiten oder in ein Mehrfamilienhaus mit vier Wohneinheiten umzuwandeln.
Dank der Nähe zum Meer und allen lebenswichtigen Einrichtungen wie Geschäften, Restaurants, Cafés und dergleichen ist diese Immobilie eine ausgezeichnete touristische Investition.
Sie wollen sich den Traum einer eigenen Immobilie im wunderschönen Kroatien erfüllen? Wir freuen uns sehr, Ihnen ein umfassendes Exposé des Objekts Ihrer Wahl zur Verfügung stellen zu dürfen. Nutzen Sie die Anfrage-Funktion und erhalten Sie in Kürze erste Inhalte zu Ihrer Wunsch-Immobilie.
5 gute Gründe, warum eine Abwicklung über die fermoso:
- Sichere Abwicklung
Gesicherte Abwicklung nach österreichischen Recht mit einem Treuhänder - Daheim in beiden Welten
Nutzen Sie uns als Sprachrohr nach Kroatien - Begleitung
Wir begleiten Sie von der Suche bis zur Stromanmeldung - Finanzierung
Wir unterstützen Sie mit unseren Partner bei Ihrer Immobilienfinanzierung - Zugang
Durch uns haben Sie exklusiven Zugang nach Kroatien
Eigenschaften der Immobilie
- 9 Schlafzimmer
- 19 Badezimmer
- Wohnfläche: 182 m2
- 19 Private(s) Badezimmer